Champion

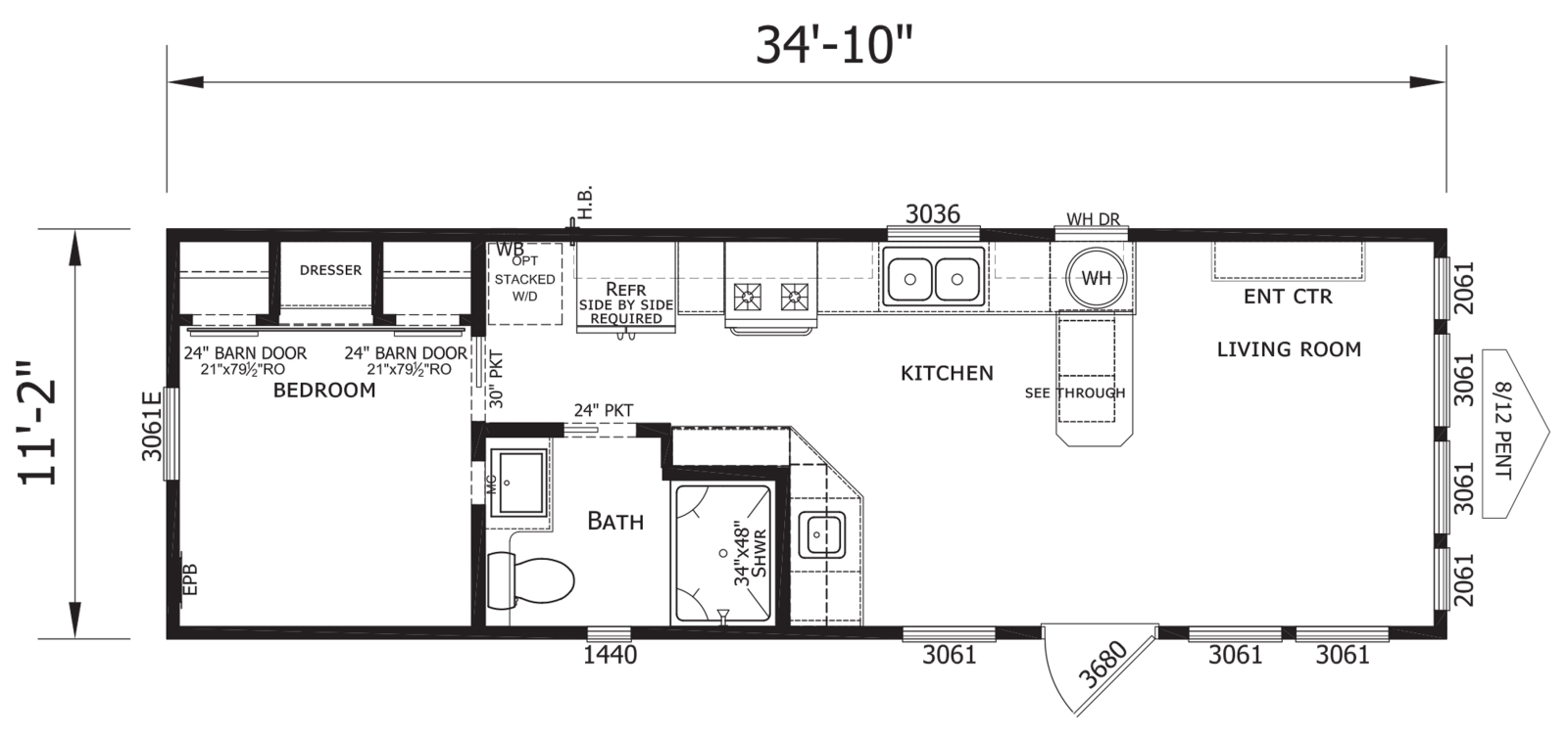
APS 528

This Park Model RV is built to the ANSI code.

Floor Plan

Virtual Tour

Come Explore Our Tiny Homes

Contact us today to schedule a tour and find your perfect tiny home.