Skip to content
Featured Homes
Floor Plans
Champion
Clayton
Financing
Featured Homes
Floor Plans
Champion
Clayton
Financing
Contact Us
Clayton
DeSoto
This Park Model RV is built to the ANSI code.
Standard Features PDF
Request Info
Floor Plan
Standard Layout
Side Entry / Living Room with 9 Windows
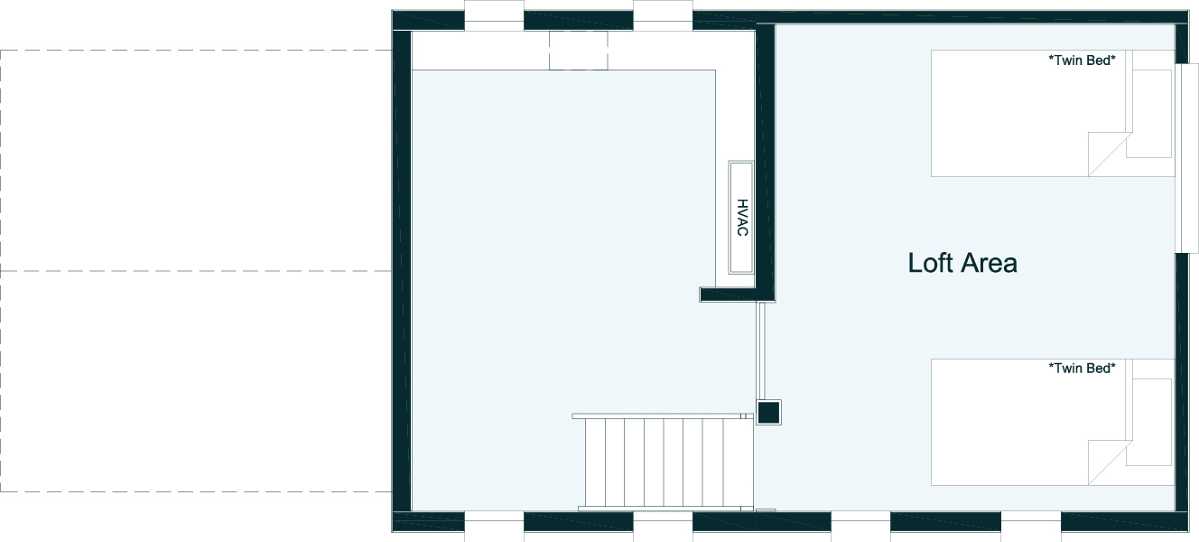
Loft
Fits Two Twin Beds
Virtual Tour
Gallery
Come Explore Our Tiny Homes
Contact us today to schedule a tour and find your perfect tiny home.
Schedule a Tour
Contact Us