Skip to content
Featured Homes
Floor Plans
Champion
Clayton
Financing
Featured Homes
Floor Plans
Champion
Clayton
Financing
Contact Us
Feature Home
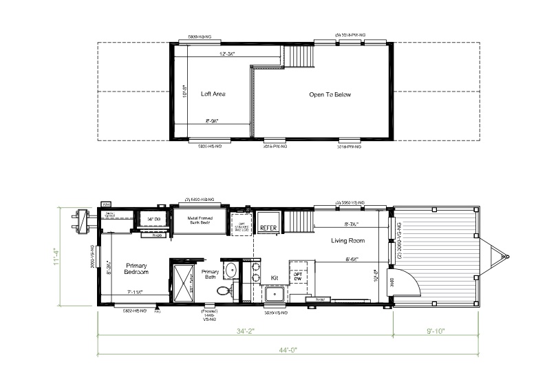
Swayback
Square Feet: 399
Bedrooms: 1
Bathrooms: 1
Home Plan PDF
Request Info
Home Plan
Gallery
Gallery not found.
Have questions?
We’re ready to help, contact us today or book a tour.
Name
Email
Request Technical Prints
Request a Showing
Tell Us More
Send Message